Thanks for submitting your information.

Request more information

Would you like to receive our brochure as well?
  • Heritage Point

    Waterside

    Custom Homes

Please fill in all of the missing information.
Exterior

Chatham Exterior

Kitchen

Chatham Kitchen

Dining Room

Chatham Dining Room

Family Room

Chatham Family Room

Master Bedroom

Chatham Master Bedroom

Custom Homes
Shore Division

1200 West Bay Avenue
Barnegat, NJ 08005

215-914-1937

e-mail custom homes

Custom Homes
PA Division

2310 Terwood Drive
Huntingdon Valley, PA 19006

215-914-1937

e-mail custom homes








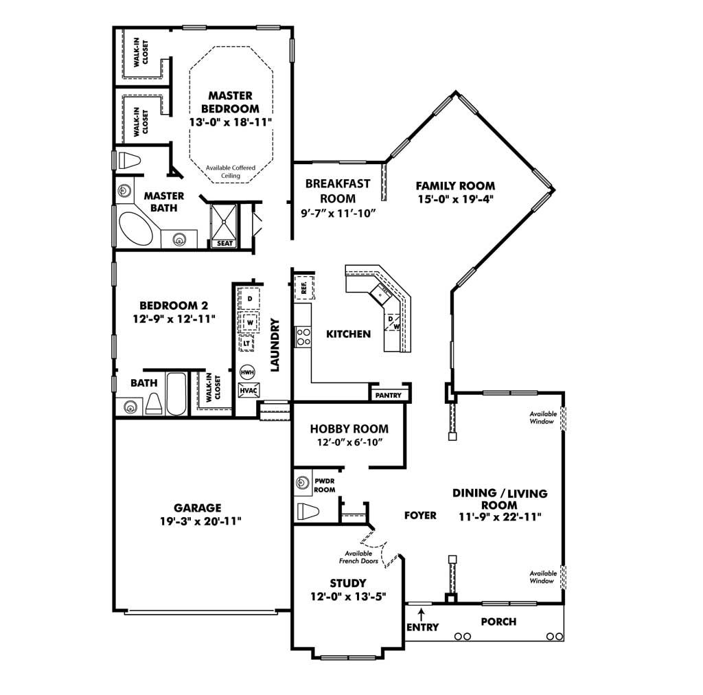
The Chatham

2 Bedrooms • 2 1/2 Baths • 2,254 sq. ft.

The sophisticated Chatham home design has it all. Two master bedroom suites, a private study and a hobby space add to this home’s charm

Available personal selections include a 3rd bedroom and bathroom, fireplace, side deck, rear deck and more. Walk up attic storage is available in the Chatham "A" elevation


Exterior Elevation Selections

  • Chatham A


    Elevation A
    2,254 sq ft

  • Chatham B


    Elevation B
    2,254 sq ft

  • Chatham C


    Elevation C
    2,254 sq ft

View a Floor Plan

  • Chatham 1st Floor


    Chatham 1st Floor