Thanks for submitting your information.

Request more information

Would you like to receive our brochure as well?
  • Heritage Point

    Waterside

    Custom Homes

Please fill in all of the missing information.
Exterior

Chatham Grande Exterior

Foyer

Chatham Grande Foyer

Kitchen

Chatham Grande Kitchen

Dining Room

Chatham Grande Dining Room

Family Room

Chatham Grande Family Room

Master Bedroom

Chatham Grande Master Bedroom

Master Bathroom

Chatham Grande Master Bathroom

Custom Homes
Shore Division

1200 West Bay Avenue
Barnegat, NJ 08005

215-914-1937

e-mail custom homes

Custom Homes
PA Division

2310 Terwood Drive
Huntingdon Valley, PA 19006

215-914-1937

e-mail custom homes








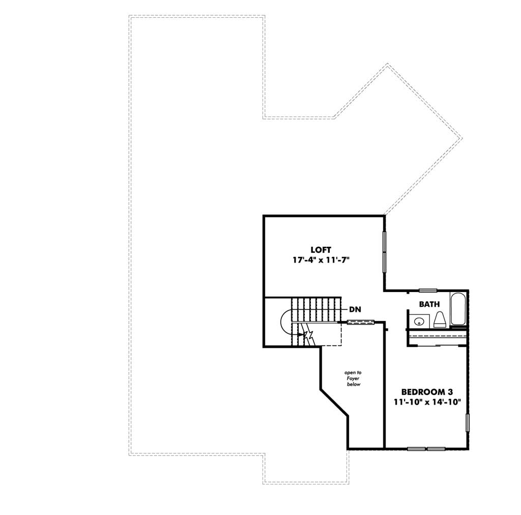
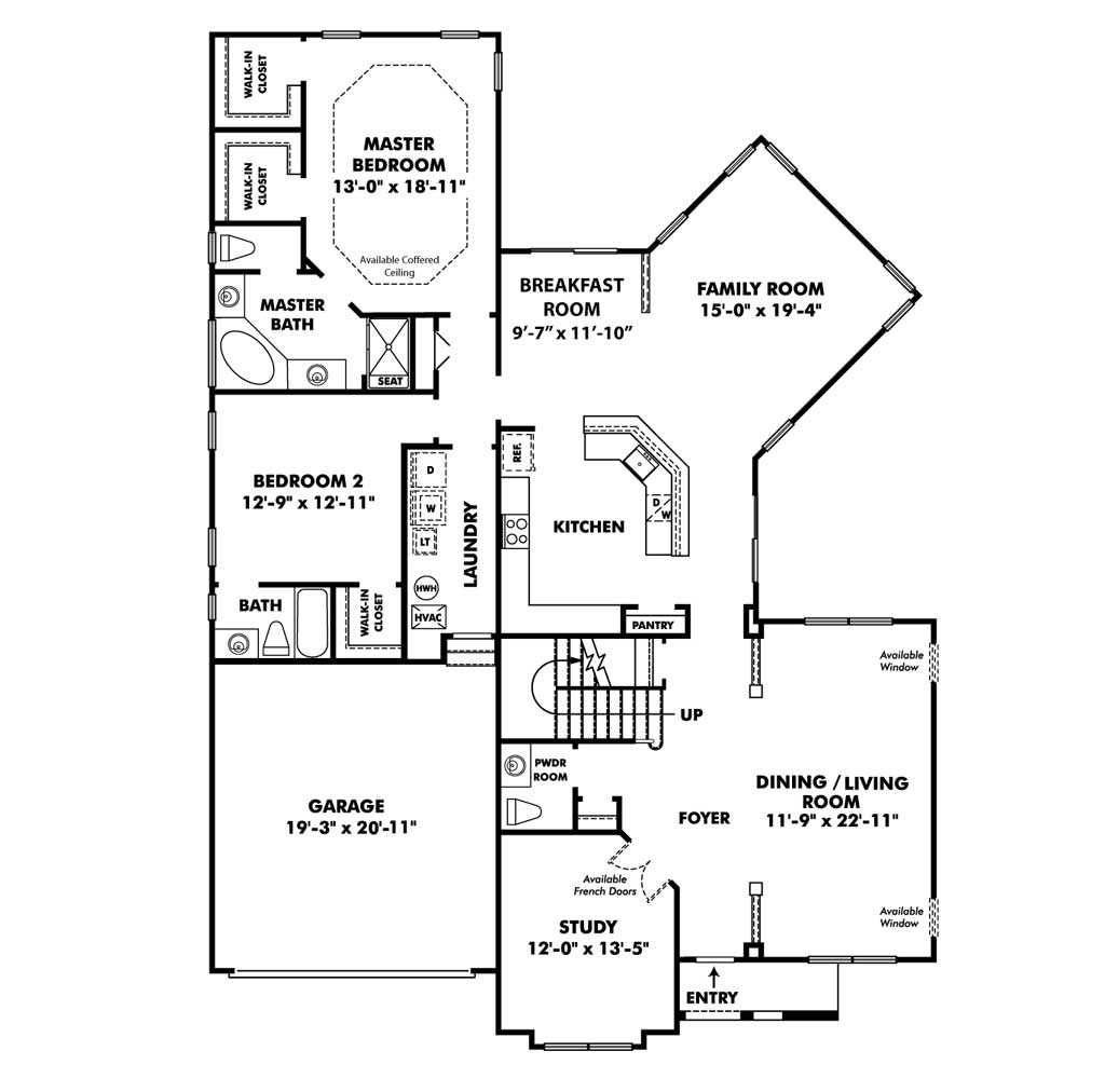
The Chatham Grande

3 Bedrooms • 3 1/2 Baths • 2,799 sq. ft.

The stately Chatham Grande features all of the charm and convenience of the Chatham with the addition of loft space and an upstairs bedroom and bathroom.

Available personal selections include side deck, rear deck, fireplace and much more.


Exterior Elevation Selections

  • Chatham Grande D


    Elevation D
    2,799 sq ft

  • Chatham Grande E


    Elevation E
    2,799 sq ft

View a Floor Plan

  • Chatham Grande 1st Floor


    Chatham Grande 1st Floor

  • Chatham Grande 2st Floor


    Chatham Grande 2st Floor