Thanks for submitting your information.

Request more information

Would you like to receive our brochure as well?
  • Heritage Point

    Waterside

    Custom Homes

Please fill in all of the missing information.
Exterior

Hatteras Exterior

Kitchen

Hatteras Kitchen

Family_Room

Hatteras Kitchen

Family_Room

Hatteras Kitchen & Breakfast Room

Hatteras Family Room

Hatteras Study

Bath

Hatteras Bath

Custom Homes
Shore Division

1200 West Bay Avenue
Barnegat, NJ 08005

215-914-1937

e-mail custom homes

Custom Homes
PA Division

2310 Terwood Drive
Huntingdon Valley, PA 19006

215-914-1937

e-mail custom homes








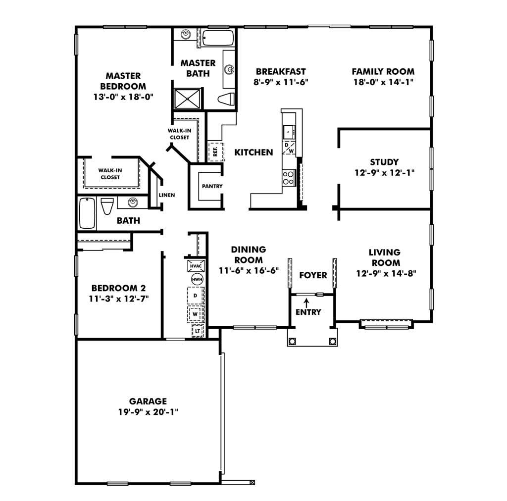
The Hatteras

2 Bedrooms • 2 Baths • 2,145 sq. ft.

The impressive Hatteras offers a private study in addition to formal and informal living and dining areas. The spacious kitchen has a large pantry and the master bedroom offers a luxurious retreat.

Available personal selections include a double sided fireplace, conservatory, alternate master bathroom design and much more. Walk up attic storage is available in the Hatteras "C" elevation.

Exterior Elevation Selections

  • Hatteras Elevation A


    Elevation A
    2,145 sq ft

  • Hatteras Elevation B


    Elevation B
    2,145 sq ft

  • Hatteras Elevation C


    Elevation C
    2,145 sq ft

View a Floor Plan

  • Hatteras 1st Floor


    Hatteras 1st Floor