Thanks for submitting your information.

Request more information

Would you like to receive our brochure as well?
  • Heritage Point

    Waterside

    Custom Homes

Please fill in all of the missing information.
Exterior

Atlantic Exterior

Custom Homes
Shore Division

1200 West Bay Avenue
Barnegat, NJ 08005

215-914-1937

e-mail custom homes

Custom Homes
PA Division

2310 Terwood Drive
Huntingdon Valley, PA 19006

215-914-1937

e-mail custom homes








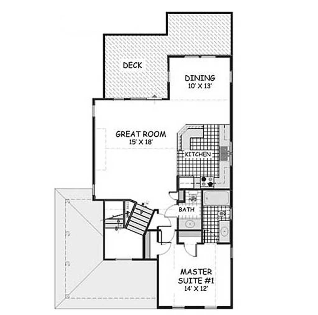
The Atlantic

4 Bedrooms • 3.5 Baths • 1,800 sq. ft.

The Atlantic’s open floor plan and two master bedroom suites make it a popular choice in shore home designs. The kitchen features a center island and is open to the great room. A covered porch on the front of the home and a rear deck provide ample exterior living space.

Exterior Elevation Selections

View a Floor Plan

  • Atlantic 1st Floor


    Atlantic 1st Floor

  • Atlantic 2nd Floor


    Atlantic 2nd Floor