Thanks for submitting your information.

Request more information

Would you like to receive our brochure as well?
  • Heritage Point

    Waterside

    Custom Homes

Please fill in all of the missing information.
Exterior

Bayshore Exterior

Custom Homes
Shore Division

1200 West Bay Avenue
Barnegat, NJ 08005

215-914-1937

e-mail custom homes

Custom Homes
PA Division

2310 Terwood Drive
Huntingdon Valley, PA 19006

215-914-1937

e-mail custom homes








The Bayshore

4 Bedrooms • 3.5 Baths • 2,450 sq. ft.

The Bayshore home design features a spacious open floor plan with a 24’x16’ living area that opens onto a rear porch. One bedroom with full bath is located on the first living level. There are three bedrooms upstairs including a luxurious master bedroom suite with sitting room, walk-in closet and access to a rear porch.

Exterior Elevation Selections

View a Floor Plan

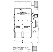
  • Bayshore Ground Floor


    Bayshore Ground Floor

  • Bayshore 1st Floor


    Bayshore
    1st Floor

  • Bayshore 2nd Floor


    Bayshore 2nd Floor