Thanks for submitting your information.

Request more information

Would you like to receive our brochure as well?
  • Heritage Point

    Waterside

    Custom Homes

Please fill in all of the missing information.
Exterior

Custom Homes
Shore Division

1200 West Bay Avenue
Barnegat, NJ 08005

215-914-1937

e-mail custom homes

Custom Homes
PA Division

2310 Terwood Drive
Huntingdon Valley, PA 19006

215-914-1937

e-mail custom homes








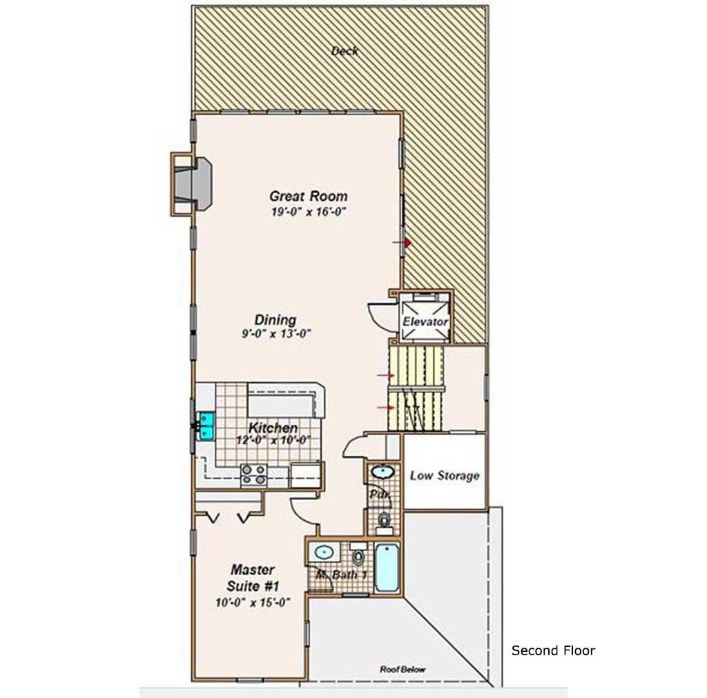
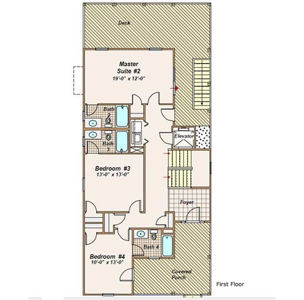
The Boardwalk

4 Bedrooms • 4.5 Baths • 2,320 sq. ft.

It’s all about exterior living space in the Boardwalk home design which features a large rear deck and a covered front porch, creating outdoor spaces for relaxing and entertaining on three sides of the home. Two master bedroom suites offer privacy and convenience while the second floor features an expansive great room and dining area.

Exterior Elevation Selections

View a Floor Plan

  • Boardwalk 1st Floor


    Boardwalk
    1st Floor

  • Boardwalk 2nd Floor


    Boardwalk 2nd Floor